While conceiving the architecture for this home in Ahmedabad, one of our primary drivers was a response to the hot and dry summers in the city, with average daytime temperatures reaching 44 degrees Celsius.
The form of the house is derived from its climatic orientation as well as shading devices that keep the internal spaces cool. Deep verandahs and overhangs, horizontal pergolas and vertical louvers gently filter the fierce sun. Strategically placed apertures promote cross ventilation, while reducing heat gain.
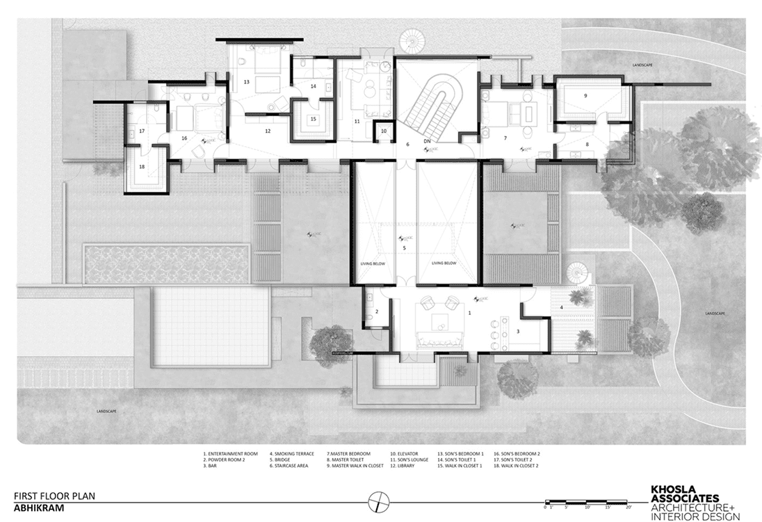
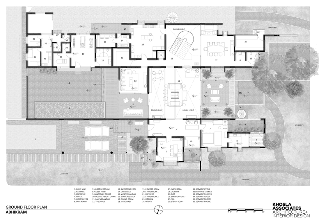
We oriented the double height living space to have permeable and shaded verandahs on its east and west to take advantage of the outdoors, the morning and evening light as well as east to west breezes. The east verandah faces an intimate pool-court while its counterpart on the west overlooks an abundance of landscaped green. Two existing old neem trees were accommodated in the building design to enhance shade in the west. The north wall of these verandahs are clad in a grooved and patterned pink sandstone and witness an ever changing play of sciagraphy on their surface throughout the day.
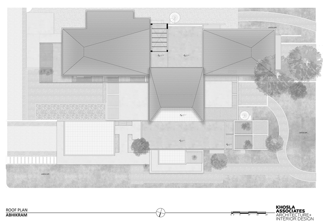
In such climates, the goal is to use materials and surfaces that would reflect rather than absorb heat. In the landscape there is a liberal use of brick paving interspersed with greenery and 80% of the roofs are clad with Clay tiles. Expanses of Glass are minimized and always protected by generous overhangs. All bedrooms on the southern face have double walls to reduce heat gain.
All materials are natural and locally sourced. Clay Bricks are used in construction, accent walls in a pink sandstone, cast-in-situ Terrazzo flooring , Kota stone and reclaimed timber for roof cladding. Doors and windows are made from a sustainable plantation ‘Accoya’ wood.
Cross ventilation is important in all the rooms and the result is evident as the East-West summer breezes pass over the swimming pool in the east, through the living room and onto the west verandah.
The design moves ensure reduced heat gain and less reliance on mechanical cooling. Since there is an abundance of sun in India, we have filtered natural light through the space to eliminate the use of light bulbs during the day.
One of the most exciting elements of the house experientially is the circulation to the first floor. A sculptural corten steel staircase connects both levels and leads to a bridge that spans 30ft across a double height living space connecting two sections of the house and leading into an entertainment lounge. The circulation plays protagonist in defining the spatial experience.
There are three trapezoidal roofs that envelope the double height living room as well as the upper level bedrooms. The one above the living space admits a soft quality of north light into its volume. The roofs are clad on their underside with the warmth of wood veneer and contrast with the cool beige terrazzo floors that extend through the home.
The interior sensibility has a soft and muted colour palette of aquas blues, beiges and blush. The chosen pieces of furniture were mostly custom designed by us in collaboration with Mangrove Collective. Contemporary Indian Art, tribal sculpture, Jain Pichwais and traditional rugs adorn the spaces, and a quintessential Gujarati swing takes centre stage in the verandah.


